For more information regarding the value of a property, please contact us for a free consultation.
2563 Cliff Hollow Circle Gulf Breeze, FL 32563
Want to know what your home might be worth? Contact us for a FREE valuation!

Our team is ready to help you sell your home for the highest possible price ASAP
Key Details
Sold Price $299,900
Property Type Townhouse
Sub Type Townhome
Listing Status Sold
Purchase Type For Sale
Square Footage 1,537 sqft
Price per Sqft $195
Subdivision Soundview T/H
MLS Listing ID 976878
Bedrooms 3
Full Baths 2
Half Baths 1
HOA Fees $49/ann
Year Built 2025
Lot Size 1,742 Sqft
Property Sub-Type Townhome
Property Description
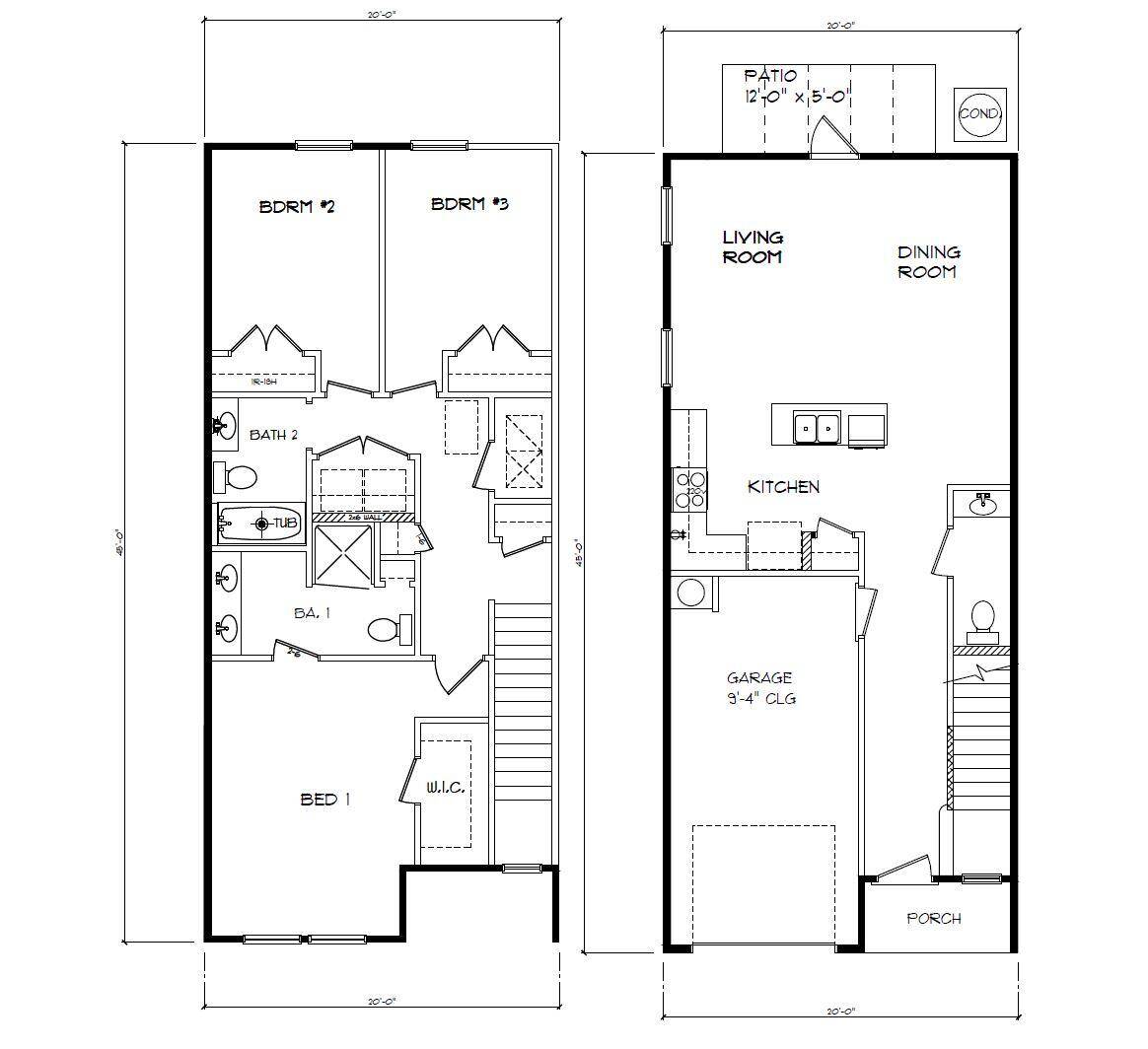
Welcome to your dream coastal retreat! Nestled in an ideal location across from the Gulf Breeze Zoo, Soundview Point Villas is only a short drive from the pristine beaches of Pensacola and Navarre. This New Townhome community will feature a gorgeous community pool, cabana, playground, and have streetlights. The Palm Interior Unit is a 2-story townhome that boasts 3 bedrooms, 2.5 baths with an open design that is perfect for entertaining. The kitchen is presented with quartz countertops, a large island bar, pantry and all stainless-steel appliances offering style and functionality. Bedroom 1 is located on the second floor as a private retreat with a spacious walk-in closet and a beautiful adjoining bath. Interior features also include EVP flooring with frieze carpet in the bedrooms.
Location
State FL
County Santa Rosa
Area 11 - Navarre/Gulf Breeze
Zoning Resid Multi-Family,See Remarks
Rooms
Kitchen First
Exterior
Exterior Feature Hurricane Shutters, Patio Open
Parking Features Garage Attached, See Remarks
Garage Spaces 1.0
Pool None
Community Features Pavillion/Gazebo, Playground, Pool
Utilities Available Electric, Public Sewer, Public Water
Building
Lot Description Covenants
Story 2.0
Structure Type Frame,Roof Dimensional Shg,Siding CmntFbrHrdBrd,Slab
Schools
Elementary Schools West Navarre
Others
Assessment Amount $597
Read Less

Bought with DR Horton Realty of Northwest Florida LLC
GET MORE INFORMATION




